Project Description
65 Haymarket Terrace, Edinburgh – An RKA Interiors Project
65 Haymarket Terrace, located in Edinburgh city centre next to Haymarket station, saw our clients wishing to transform the building’s common parts to keep both existing tenants and attract new ones.
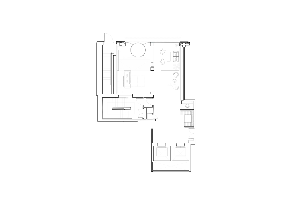
Our solution is to incorporate an unused garden to extend the reception space and create internal spaces to sit, relax, and work. Exposing the original concrete structure, including a waffle slab ceiling, provides thermal mass whilst significantly increases ceiling height.
The concrete aesthetic contrasts well with the contemporary fit out of timber, terrazzo, and pastel colours.
Our design looks at providing other amenity spaces for the tenants, a new rooftop terrace space, and lower ground floor cycle amenities.
Client:
CBREi
Location:
Edinburgh, Scotland
Sectors:
Workplace, Retrofit










